2023-09-15 10:10
已查看78次
鑄造樹脂在工業制造領域有著重要的應用。在汽車制造中,鑄造樹脂常用于制作零件模具,如車燈、儀表盤等。與傳統的金屬材料相比,鑄造樹脂具有重量輕、加工成本低等優勢,能夠滿足汽車制造中對零件精度和強度的要求。此外,鑄造樹脂還可以用于制作航空航天領域的模型和部件,如飛機模型等。這些模型可以用于飛行性能測試、結構設計驗證等工作,為航空航天領域的發展提供了重要的技術支持。本篇文章山東普創工業科技有限公司根據GBT 2567-2021標準為您提供樹脂澆鑄體拉伸試驗方法。
測試原理:
沿試樣軸向勻速施加靜態拉伸載荷,直到試樣斷裂或達到預定的伸長,在整個過程中,測量施加在試樣上的載荷和試樣的伸長,以測定拉伸應力(拉伸屈服應力、拉伸斷裂成為或拉貌強度)拉伸彈性模量﹑斷裂伸長率和經制應力應變曲線。
檢測設備:
ETT-C材料試驗機
試樣制備:
1.試驗設備載荷誤差不應超過±1%,試驗設備量程的選擇應使試樣破壞載荷在滿量程的10%~90%范圍內(宜盡量落在滿量程的一邊)。
2.測量變形儀表誤差不應超過土1%。
3.試驗設備能獲得試驗方法標準規定的恒定的試驗速度,當試驗速度不大于 10 mm/min時,誤差不應超過士20%;當試驗速度大于10 mm/min時,誤差不應超過士10%。
4.測定彈性模量時,能自動記錄應力-應變曲線。


試驗條件:
1.環境溫度:(23士2)℃,相對濕度(50士10)%。
2.測定拉伸強度時,試驗速度為10 mm/min;測定彈性模量,應力-應變曲線時,試驗速度為2 mm/ min。仲裁試驗速度為2mm/ min。
試驗步驟:
1.試樣制備。
2.試驗前,檢查試樣。試樣應平整、光滑、無氣泡,無裂紋、無明顯雜質和加工損傷等缺陷。每組有效試樣不少于5個。
3.試樣狀態調節,試驗前試樣應在試驗標準環境條件下﹐至少放置24 h,狀態調節后的試樣應在與狀態調節相同的試驗標準環境條件下試驗(另有規定時按相關規定)。若不具備實驗室標準環境條件,試驗前試樣可放在干燥器內,至少放置24 h。
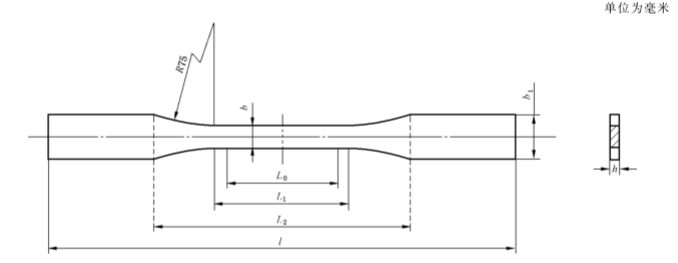
4.將試樣編號,測量試樣標距[圖1中L。段]內任意3處的寬度和厚度,取算術平均值。測量精度按試樣工作區間的測量準確至0.01 mm。試樣其他值的測量精度,按相應試驗方法的規定。
5. 測定拉伸強度時,夾持試樣,使試樣的中心軸線與上下夾具的對準中心線一致,按測定拉伸強度時,試驗速度為10 mm/min;測定彈性模量,應力-應變曲線時,試驗速度為2 mm/min。仲裁試驗速度為2 mm/min。規定的試驗速度均勻連續加載,直至破壞,讀取破壞載荷值。
6.測定拉伸彈性模量,斷裂伸長率時,在工作段內安裝測量變形儀表,施加初載(約3%的破壞載荷),檢查和調整儀表,使整個系統處于正常工作狀態,連續加載至破壞。
7.若試樣斷在夾具內或圓弧處,此試樣作廢,另取試樣補充。同批有效試樣不足5個時,應重做試驗。
山東普創工業科技有限公司自主研發生產實驗室檢測設備,更多設備等您來洽談!
查看更多 >
?查看更多 >
?查看更多 >
?查看更多 >
?查看更多 >
?查看更多 >
?
聯系我們